Brandbjerg Manor, Denmark

TERROIR developed a proposal for Brandbjerg Manor in the Real Dania competition, titled "Tomorrow's Manor". The proposal was carried out in close cooperation between Brandbjerg College which is based in Brandbjerg Manor (Simon Lægsgaard Madsen, Director) and architects Alex Poulsen Arkitektkontor A/S.

This project aimed to set a strategy that could be used in many of these similar buildings across Denmark, where new interventions are required, while also addressing the specific needs of the existing college. 

A new architectural language was deployed to frame and highlight the beautiful and evocative aspects of the original building in a sort of tango - so that the contrast between the two is constantly experienced simultaneously and through one another. The new and the old would thus reinforce each other and through this play create a contemporary setting for events in close contact and respect for the context, both in the exterior and interior.

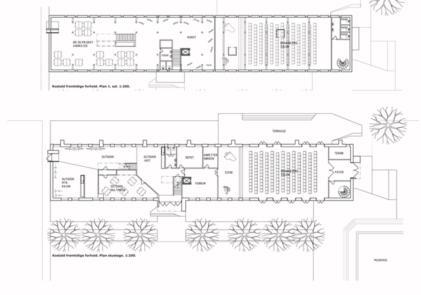
Generally, we attempt to open up the spaces by removing most existing interior walls as a way to broaden the experience of building extent, allow for flexible spaces, and giving space for existing elements - such as the beautiful ceiling with rows of narrow arches - to read clearly.


This new open space creates new possibilities for the separation of functions in the school workshop between the two zones, hunting and mechanics - blood and oil .  Between them, and centrally located in the room is a connection to the upper level - a breakthrough feature that connects the different spaces and functions but also acting as a light-shaft which becomes a sculptural, room divider and structural element.

The existing building is re-connected to the context  by a framing of three new openings where new and old meet and are presented externally. A new floor surface establishes a new datum for future activities and unfolds and transformes into  stairs, shafts and other elements of enclosure.


The sequence ends with a series of skylights or "snorkels" which direct and distribute the light.  Some of these allow a glimpse of the sky, while in the workshop and art room there is a focus on the interior such that the experience of the light in these rooms is for abstraction and thinking.

Dansk

Terroir har i foråret 2010 udviklet et forslag til Brandbjerg Herregård i forbindelse med idekonkurrencen ”fremtidens Herregårde”. Forslagets løsning er udført i tæt samarbejde mellem Brandbjerg Højskole som er hjemmehørende på Brandbjerg Herregård , ved forstander Simon Lægsgaard Madsen og arkitekterne fra Alex Poulsen Arkitektkontor a/s.

I projektet fokuserer vi på at synliggøre forskellen mellem NYT og GAMMELT. Vi ønsker at bruge de NYE arkitektoniske elementer til at indramme og fremhæve det smukke og stemningsfulde af det oprindelige som i en tango hvor man hele tiden tager afsæt i det GAMLE men svarer eller modsvarer med NYE indsættelser således at oplevelsen hele tiden veksler, men konstant opleves samtidigt og i kraft af hinanden. Det NYE og det GAMLE vil på den måde forstærke hinanden og ved denne leg med kontrasterne skabes der således en nutidig ramme om begivenhederne i tæt kontakt og respekt for konteksten, både i eksteriør og interiør.

Et nye forløb af gulvflader hæftes til den eksisterende ved 3 nye åbninger:  hovedindgange til bygningen, det sted hvor NYT og GAMMELT mødes og præsenteres udadtil.

Generelt tilstræbes det at åbne etagerne ved at fjerne de fleste eksisterende indervægge for på den måde at udvide oplevelsen af bygningens udstrækning, give plads til fleksible rumligheder, og skabe stemning ved mulighed for gennemlysning og ikke mindst lade de stærke elementer træde i karakter, fx det smukke loft med rækker af smalle buehvælv der minder om fortidens staldlofter.

I dette nye åbne udstrakte rum etableres nye muligheder for adskillelse af funktioner, i værkstedet mellem to zoner, jagt og mekanik – blod og olie – imellem dem og centralt placeret i rummet skabes en forbindelse til 1 salen – som et gennembrydende element der sammenbinder de forskellige rum og funktioner, som centrum i en cirkulation de både transporterer mennesker mellem rummene men også  virker som lys-skakt der i eet og samme optræder som skulpturelt, rumdelende og bærende  element.

Forløbet ender med i en række ovenlys af skulpturel karakter, vi betegner dem snorkler, der leder og fordeler lyset, nogle steder tillader kig til himlen, andre steder lader lys strømme ud gennem udskæringer, i Ide – værkstedet og i Kunstrummet fokuseres således på interiøret, og kontakten til bygningens ydre udviskes,  der gives  plads til oplevelse af lys, abstraktioner og tankevirksomhed.