Claremont College

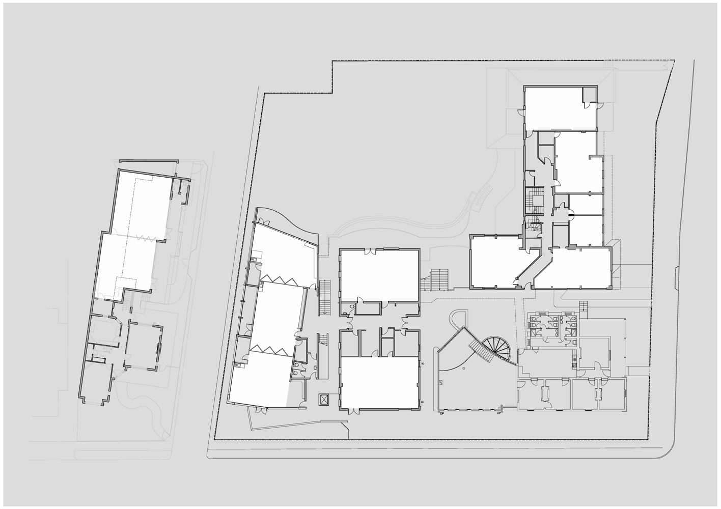
Claremont College is a typical Sydney beachside school campus spread across a diverse range of buildings, from heritage to modern and of wildly varying degrees of quality.

TERROIR was initially engaged for a small refurbishment project, the success of which led to a larger suite of projects intended to bring together all of the disparate parts of the school into a coherent campus and which creates a support structure for the enactment of the school’s key values; learn, life, light, love.

To create a unified campus from a series of alternations and additions, a clear unifying strategy was required.   This came in the form of a clear approach to pedagogy and social development, encapsulated in the school’s key values and supported by research into international developments in education spaces.

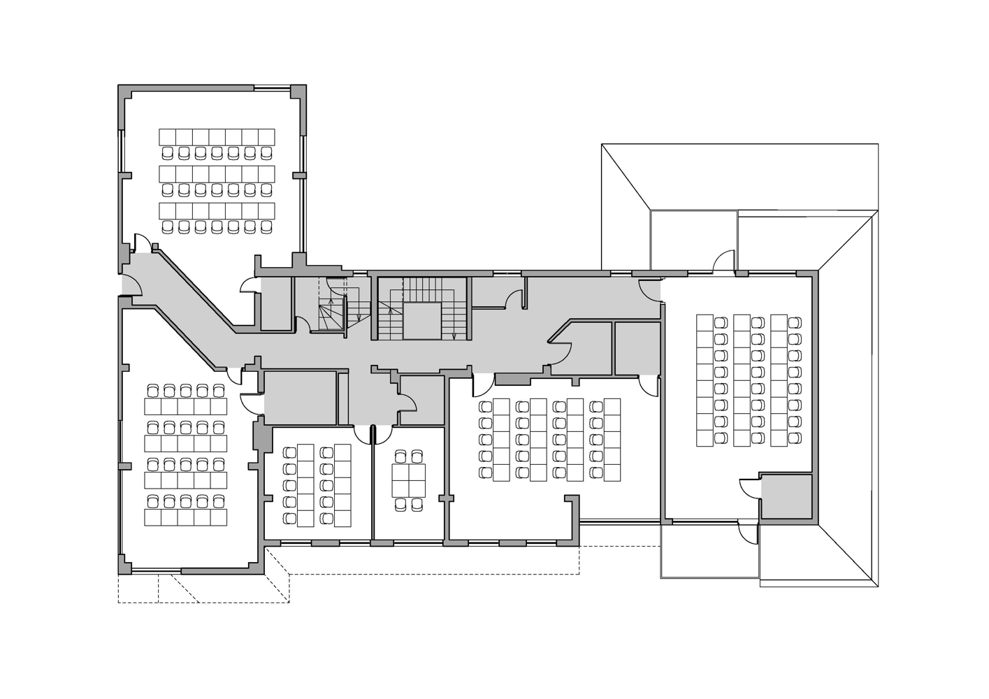
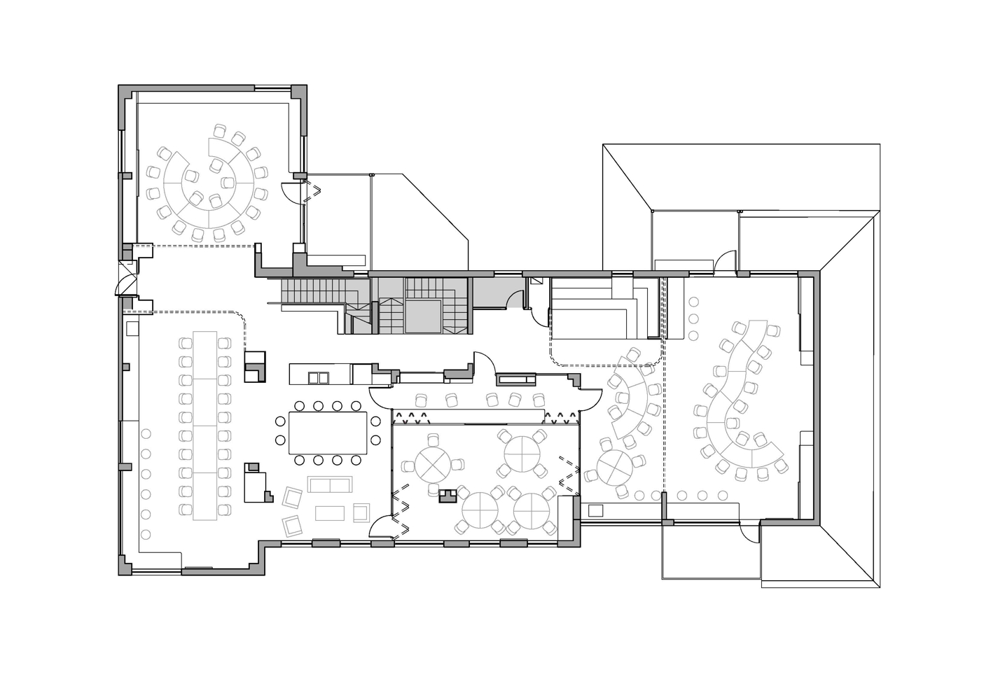
In particular, Parkash Nair & Annalise Gehling's writing on 21st century learning provided a galvanizing moment for the client, architect and project management team around a vision for interpreting and reconfiguring the existing building fabric of the school. The introduction of tablet technology in teaching practices has allowed the spatial experience of learning to evolve. No longer does the teacher become the sole point of focus in the classroom both in terms of space and guidance but rather, supported by the distributed information access possible with tablets, enables the teacher to work as a facilitator or manager of learning.

By literally x-raying the fabric of the existing buildings and clearing out all but the necessary supporting structure both in terms of plan and section, a new open, light, bright space was created.  The existing and irregular geometries of the existing buildings could not be eradicated of course and were explored for their own opportunities.

Adaptive reuse projects by their very nature are sustainable.  In this instance the stripping back of the existing building fabric also provided new opportunities in regards to key sustainable elements that could upgrade the existing building; opening up the attic space to the floor plate below allowed for venting louvres at high and low level allowing for a naturally ventilated space. Where previously cross ventilation was not possible due to intermediate classroom partition walls, the open plan revealed the potential for the existing facade to naturally ventilate the classrooms and reduced the need for artificial lighting, this was coupled with new low energy LED fittings. A new skylight to the centre of the plan further increase natural light penetration into the floor plate.  

 

'One of the highlights for me, has been to opportunity to work with so many incredible people, who have brought talent, expertise, hard work and dedication, creativity and a sense of 'going above and beyond' for the school and the children. I am very grateful for this, and I have appreciated all that I have learnt from you, and for the sense of teamwork, enjoyment and satisfaction that has been a feature of all that we have achieved'

           Doug Thomas, school principal sept 2013