Clareville House

Clareville is a beautiful part of the greater Sydney area, featuring large waterways and waterfront property. 

The project commenced in an exercise in mapping the natural site and views out from and back toward that site to create a machine for designing the object itself. The spatial and organizational logic underpinning the house was then rendered in a material palette sympathetic to the surroundings, using the same timber species found on the site.

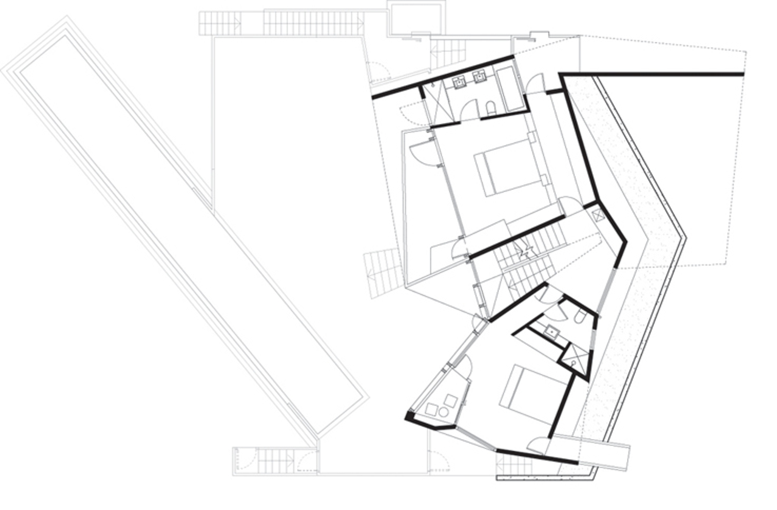
In detail, the house was set by the location and orientation of 4 key rooms in the house (living, studio and 2 bedrooms). The volumes of these spaces are diagrams of the desired view and were determined by precise mathematical measurement of the relation between the site and views in both plan and section. More immediate constraints such as the location of significant trees further defined the geometry and the footprint of the main rooms.

The connections to street and site were developed from the overlay of a meandering path which negotiated the considerable level differences between street and water and the geometry determined by the view analysis. This path is an amplification of the existing means of traversing the site - jumping from rocky ledges to flat areas of undergrowth - and takes cues from it in the resolution of volumes and materials.

The main volume of the house is blinkered by fattened timber walls to effect privacy to the neighbours and further intensifies the views out and across Pittwater. The roof canopy completes the system of customised facades - rolling with the geometry below and splitting to allow light to enter. The canopy form of the roof engages with surrounding trees and thus completes the transformation of the site but in a manner which preserves the essential qualities that led the clients to make it their home.