National Museum of Finland

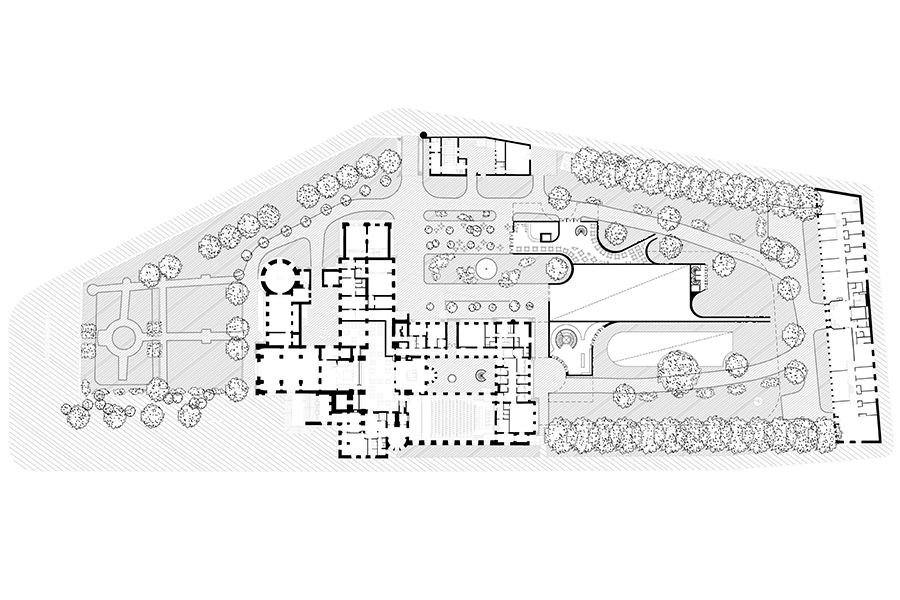
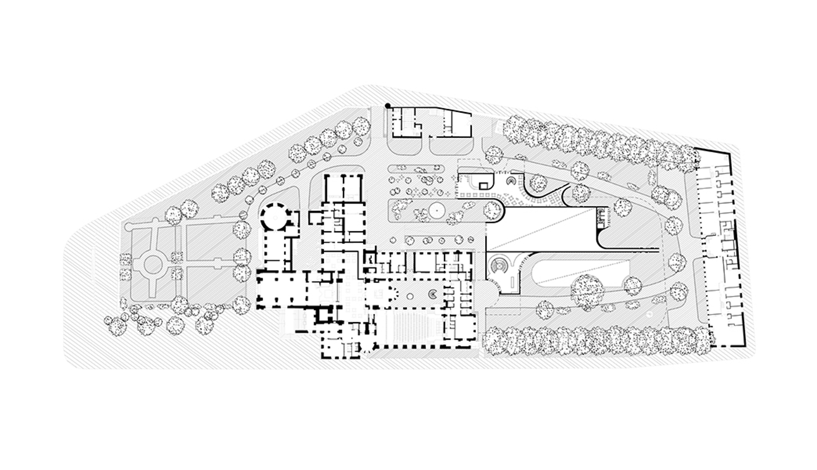
The National Museum of Finland is a major institution sited in the centre of Helsinki, across the road from Aalto’s Finlandia Hall.  The museum was designed by Herman Gesellius, Armas Lindgren and Eliel Saarinenin the national Romantic Style popular in Scandinavia, - and particularly Finland - in the early 1900s.  A key part of the project was the garden, recently completed to Saarinen and his collaborator’s design.

Requiring a major new gallery to allow the exhibition of contemporary objects, while at the same time improving security, conservation and storage, meant that the program had to be located in the garden, and connect into an existing lift centrally located within it. The design needed to resolve this inherent conflict.

We propose a building that is part of and reinforces the garden.  Specifically, the plan weaves through the centre of the garden and navigates the elliptical paths designed by Saarinen and recently realised.   Where the program insists upon traversing these paths, the building is cut to allow it to pass.

The copper skin and faceted curves are both a homage to Finlandia Hall opposite but also ensure the building merges with the garden over time.  Pockets of the façade are reserved for wall covering plants, completing the fusion of building and park.