Winery, Great Wall

TERROIR were invited to design a Winery on a prominent site and one of the first projects for The Great Wall Cultural Resort Development in Ji County, Tianjin in China. 

Overlooking the Huanxiu Lake, the site has a breathtaking hill-side setting, incorporating the subtle stone wall-terracing of hillsides that is commonplace in the region and which have enabled sustainable farming practice over many generations.

To place a contemporary project within this setting requires an appreciation of the responsibility towards history and the environment. 

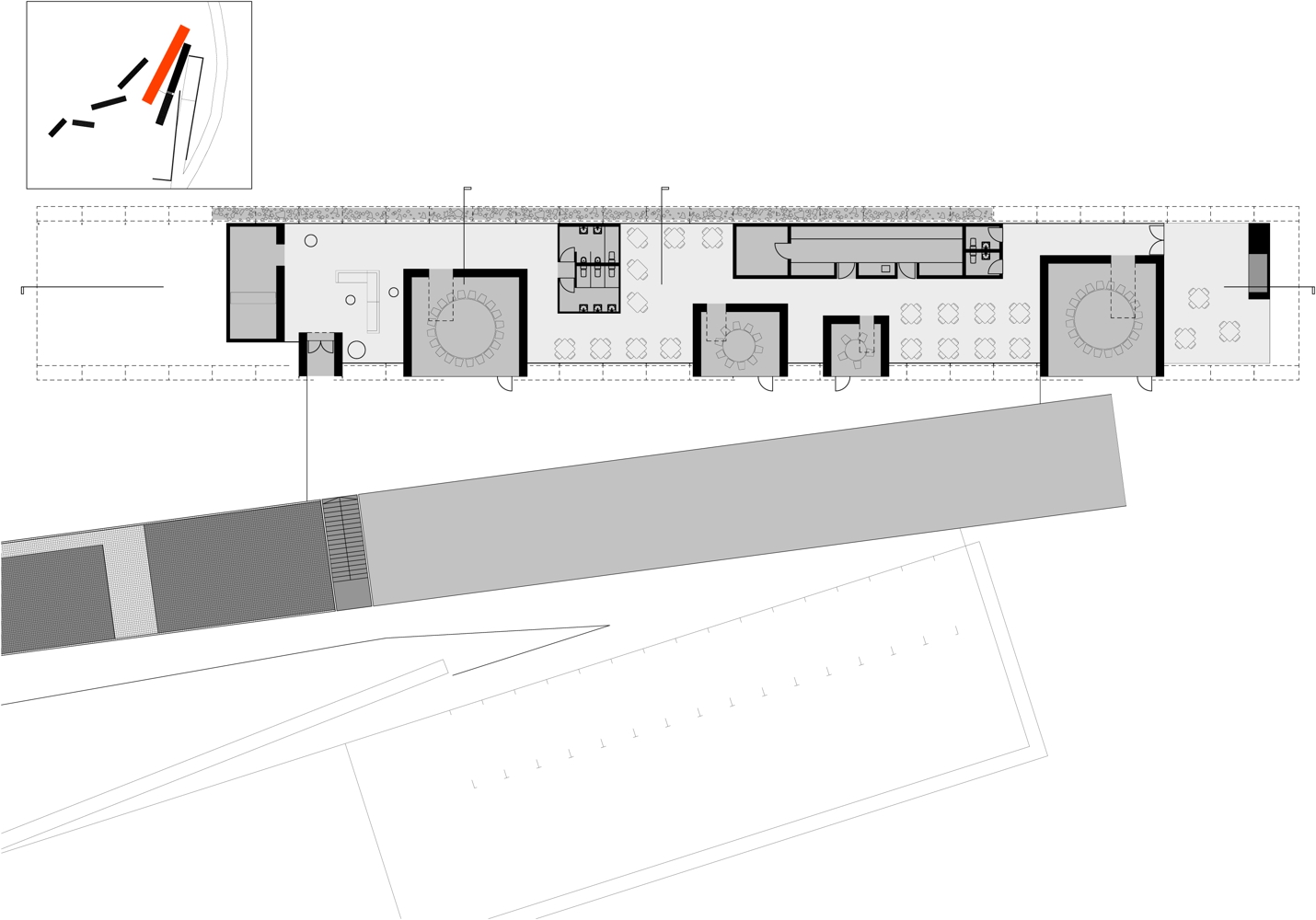
We looked to the fundamental character of the site – the rock-wall terracing method of subtly changing the landscape – to inform this proposal’s primary architectural element of gabion-basket enclosures.  With these cages of loose-stacked stones we have established a commonality between the new and unfamilar and the old patterns and practices extant at the site.

The valley leading up to the Huangya Gate of the Great Wall is a dramatic, powerful landscape, with steep mountainous terrain rising on either side of the meandering Ju River. The Winery site occupies a portion of the overall valley region and within its subtlety and sensitivity should project itself conceptually to be an integral part of the entire resort area comprising in excess of 200 square kilometres. The commanding, linear forms of the proposal slide out from the hillside as though they have seemingly been “revealed” rather than placed on to the site. Its intended that this new building is seen as part of the ground and infact part of the powerful landscape in which it occupies.

Terroir’s work is the beginning of a broader relationship between Ji County and RMIT University’ School of Architecture and Design who will draw on their international renown to bring together collaborative design partners to work as a community rather than a series of individuals on The Great Wall Cultural Resort Development Master Plan.

This project represents a special opportunity to bring together an innovative design effort to address challenges that while particular to China, are none the less also faced in other parts of the world including demographic change, rapid urbanization and the global challenge of living within our means.