Sustaining both people and place
St.Lukes Health’s new headquarters epitomises a vision of making Tasmania the healthiest island globally. Spanning 5,500 square meters, this project became Tasmania’s most sustainable and carbon-positive office development. It achieved a 40% carbon reduction, making it one of Australia’s pioneering Net Zero Carbon projects. The building hosts office spaces, end-of-trip facilities, a café, and versatile commercial and community areas, all essential to St.Lukes Health’s goal of fostering a healthy community.
The project employed mass timber construction, which successfully removed 7,665 tonnes of carbon from the atmosphere – comparable to the emissions from 2,141 cars driving 20,000 km annually. Moreover, a life cycle plan directed the timber configuration, outlining how the structure could be re-engineered and repurposed at the end of its useful life.
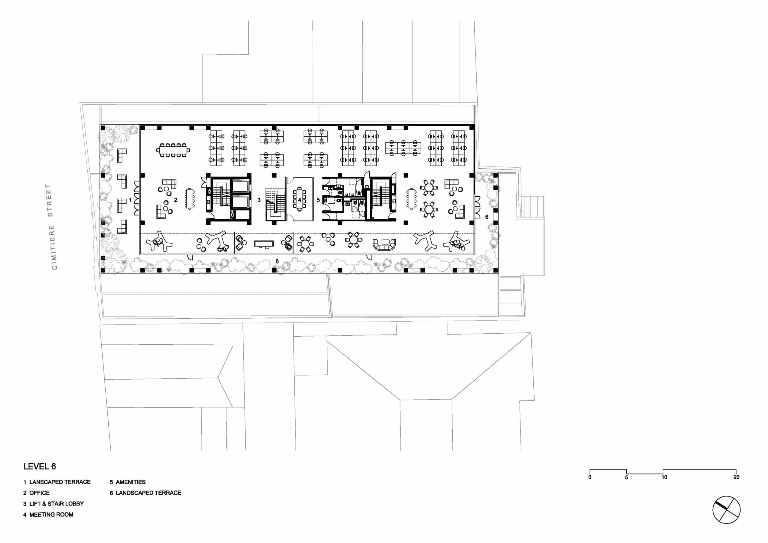
On an urban scale, this new high-rise in Launceston offered unique opportunities specific to the city’s topography, where key views of valley buildings were often seen from adjacent ridges. Thus, the form and character of the building’s roof (the ‘fifth elevation’) and its massing as seen from above are understood within this broader urban and topographical context. The building is capped by an outdoor room on the upper two levels complete with a Tasmanian native garden; a landscape in miniature that is experienced in conjunction with the wider Launceston landscape beyond.
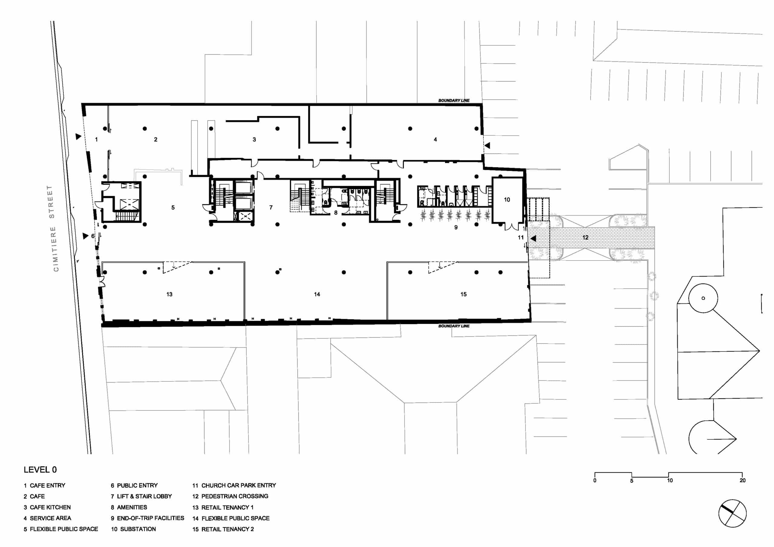
In any project focused on a reduction in carbon emissions, the value of existing built fabric takes on new importance. Here, existing 19th century warehouses are retained and structure the foyer, a cross-site link that connects to the grounds of the adjacent church and associated public spaces on ground level such as end-of-trip facilities. The tower element rises above these warehouses, but with an uncannily familiar quality given the use of expressed mass timber construction – the use of contemporary timber technology placed in juxtaposition with the retained timber trusses.
> BUILDINGS > STRATEGY > URBAN > RESEARCH