Radical Transformation
The project is located on extraordinarily beautiful, semi-rural site in the north-west of Sydney, where the existing house on the site was a 1980s project home slated for demolition to make way for a new building. While testing a series of options for the new home, the client lived in the existing house, discovering as time wore on that it was surprisingly well organised to take advantage of the site qualities.
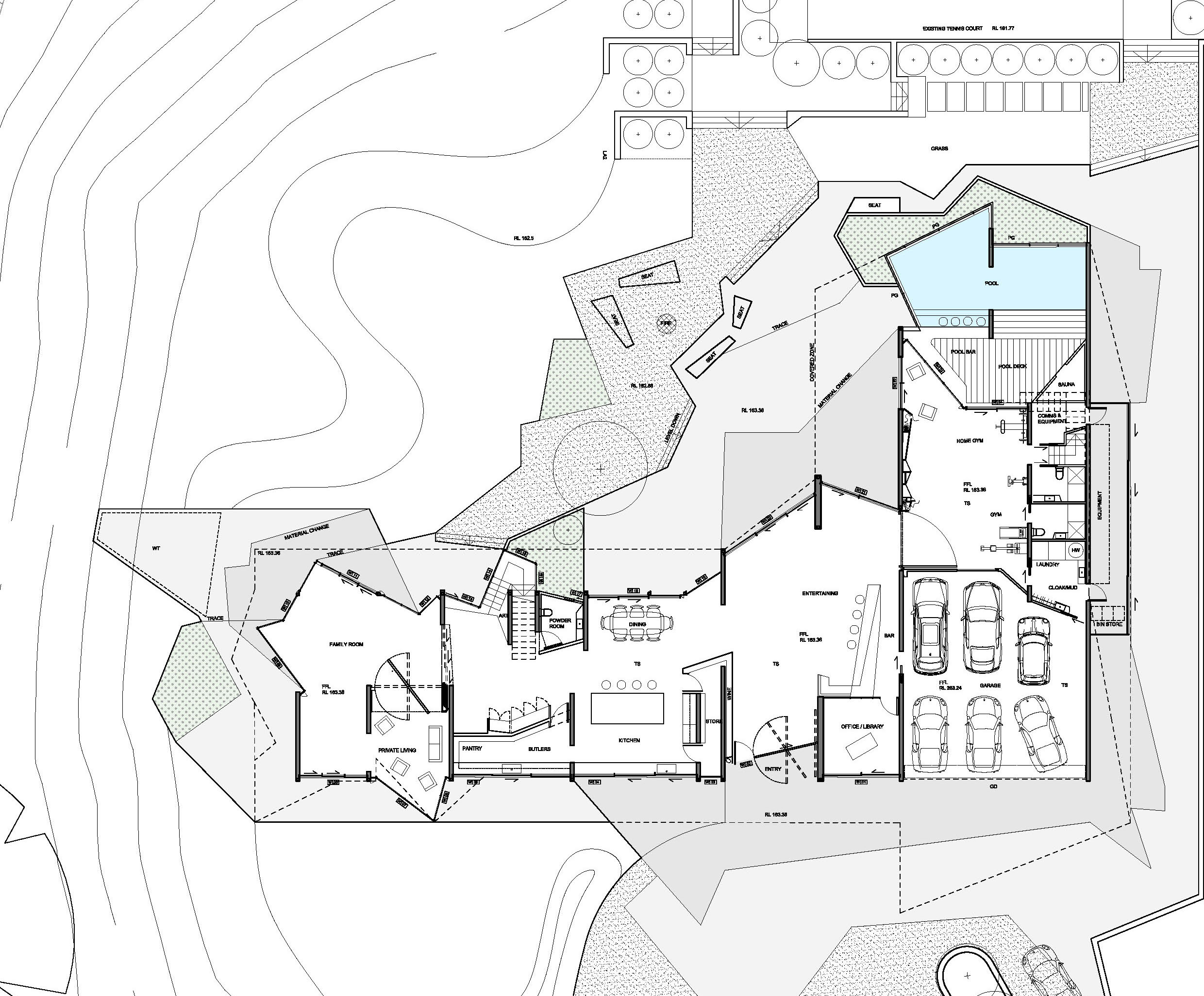
This appreciation of the logics of the existing house led to the abandonment of the more conventional solution for a radical one. The project home would be retained as much as possible with a series of new spaces woven through the existing in plan and section. At a time when brand new homes are done in the name of “sustainability”, this project challenges how we define the term and what a truly sustainable architecture might look like – contingent, unexpected and borne from an alternative aesthetic history to the one that dominates architectural discourse and practice.
As an act of radical transformation, central to the approach is a forensic analysis of how the logics of the existing project home could be retained while enabling new forms of occupation on the site. The existing plan and structure provided a rhythm for the location of new functions, while patterns of movement across the site disrupt the parallel arrangement current defining the structure and spaces. An exercise of surgical removal and repair across these parallel walls completes the planning while trigger a second set of operations in section that lead to a series of new attic spaces.
> BUILDINGS > STRATEGY > URBAN > RESEARCH