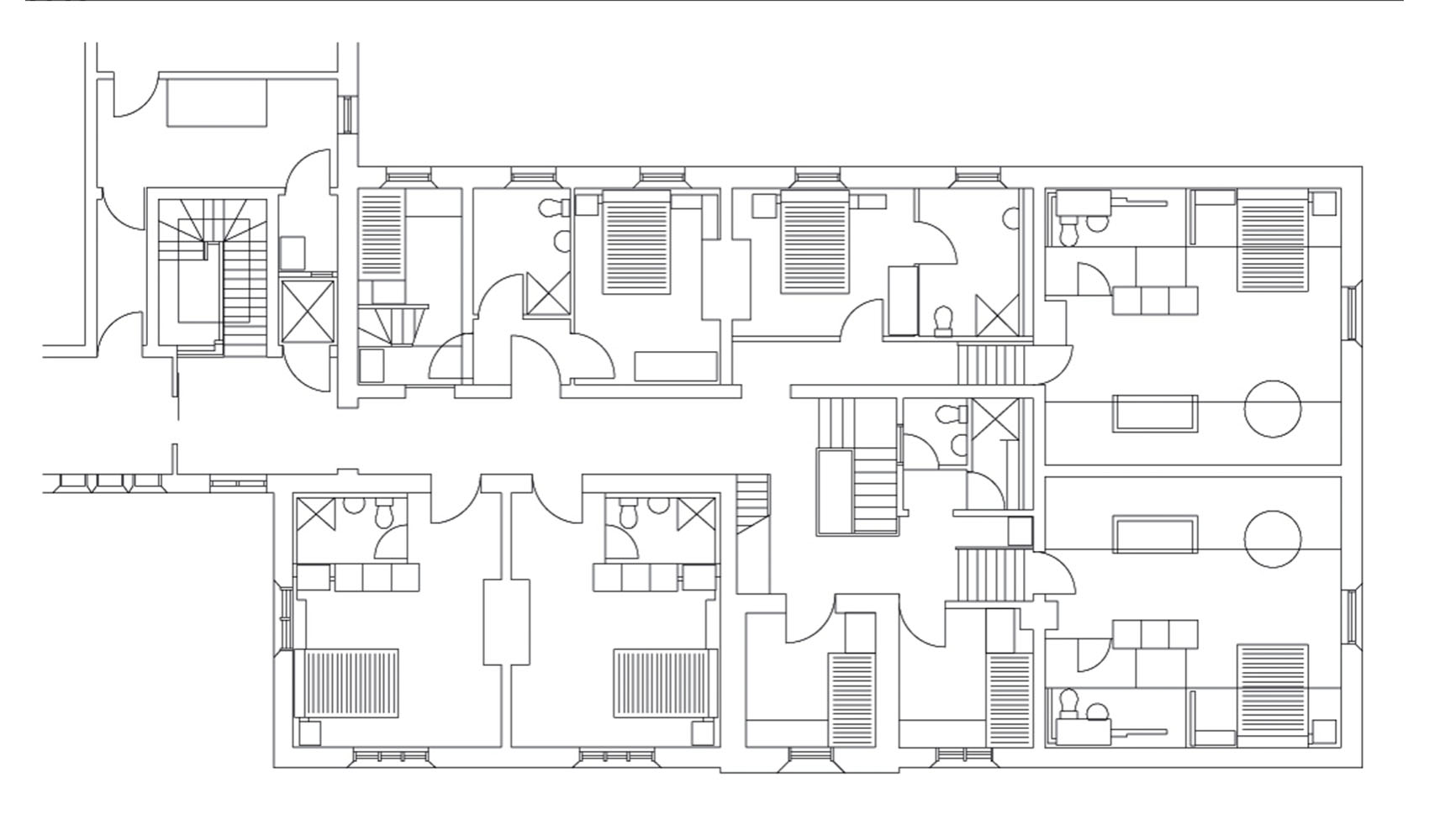
This was the first project completed by the practice and was designed while all original partners were spread across the world and were yet to occupy the same office. Hence, this refurbishment of an 1847 Neo-Gothic school building of national heritage significance reflects the concerns and experiences of the three Directors at this time, most particularly an intensive engagement via travel and work with sophisticated alteration and addition work on heritage sites in Europe. The refurbishment involved the re-use of dormitory rooms as accommodation, recalling their original purpose, but the new work, while contemporary in nature, goes further than a simple ‘old vs new’ dichotomy, exploring a more layered understanding of the site and its history.
Central to this strategy was the use of a ‘contraption’, or ‘puzzle-box’ element which made possible the rejection of a standard hotel ‘fit-out’ approach. Rather, a sculptural object installed in a museological manner provided a fully appointed contemporary hotel suite. The element was designed from standard sheet sizes and was deliberately detailed without handles, switches and so on that would “give away” its functional purpose. A metal plate display armature locates the box and solves additional functional requirements such as luggage shelves and so on. Hotel visitors thus enjoy the surprise learning how this element opens and what it contains.
The recovery of original wallpaper, forgotten stone finishes and pressed metal ceilings are all drawn into the composition and framed by it. A richer reading is therefore possible. The new works act both as an historical excavation and contemporary statement, whereby the architecture becomes a structure of convoluted time in which the genesis touches the present moment of its unfolding, drawing together past and present in a single space.
> BUILDINGS > STRATEGY > URBAN > RESEARCH