A place to gather and focus on health
The repurposing of an existing mid-city two storey tenancy for a flagship store for Tasmanian private health insurer St.LukesHealth forms part of the organisation’s promotion of its vision to make Tasmania the healthiest island in the world.
The brief was to provide a real-world activation of the St.LukesHealth brand through a health and wellbeing hub, revolving around the desire to make Tasmanians physically, mentally and socially healthier. Key to this objective was to provide a space for St.LukesHealth customers, staff and an extended invitation to the broader community, to use the flexible internal spaces for a constantly changing program of health and wellness activities.
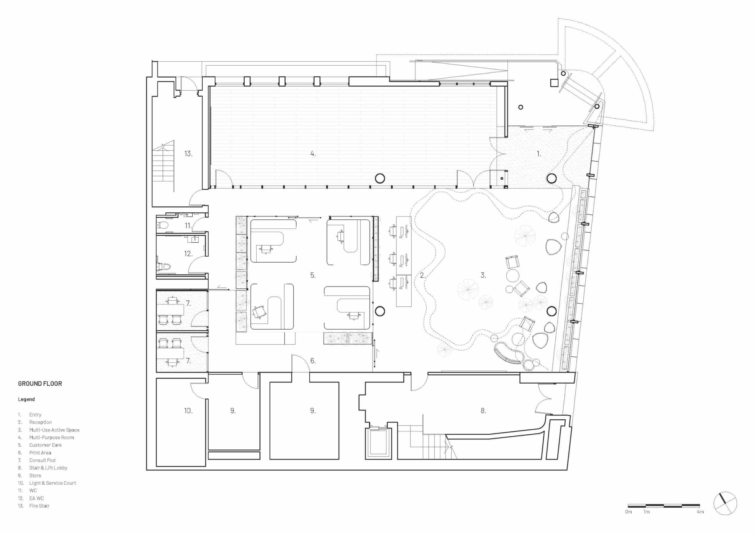
The ground floor of the 394m2 tenancy caters for their Customer Care Centre with a projected annual increase of 5,000 customer transactions per annum. The remainder of the ground floor is a welcoming experiential space to draw people into the building, where they are informed on different health-related aspects. A separate flexible space hosts more regular programs such as yoga, group training and lectures. The open space under the feature timber ‘hollow’ is used for a variety of events such as lunchtime free concerts, temporary displays, and even after-hours social events.
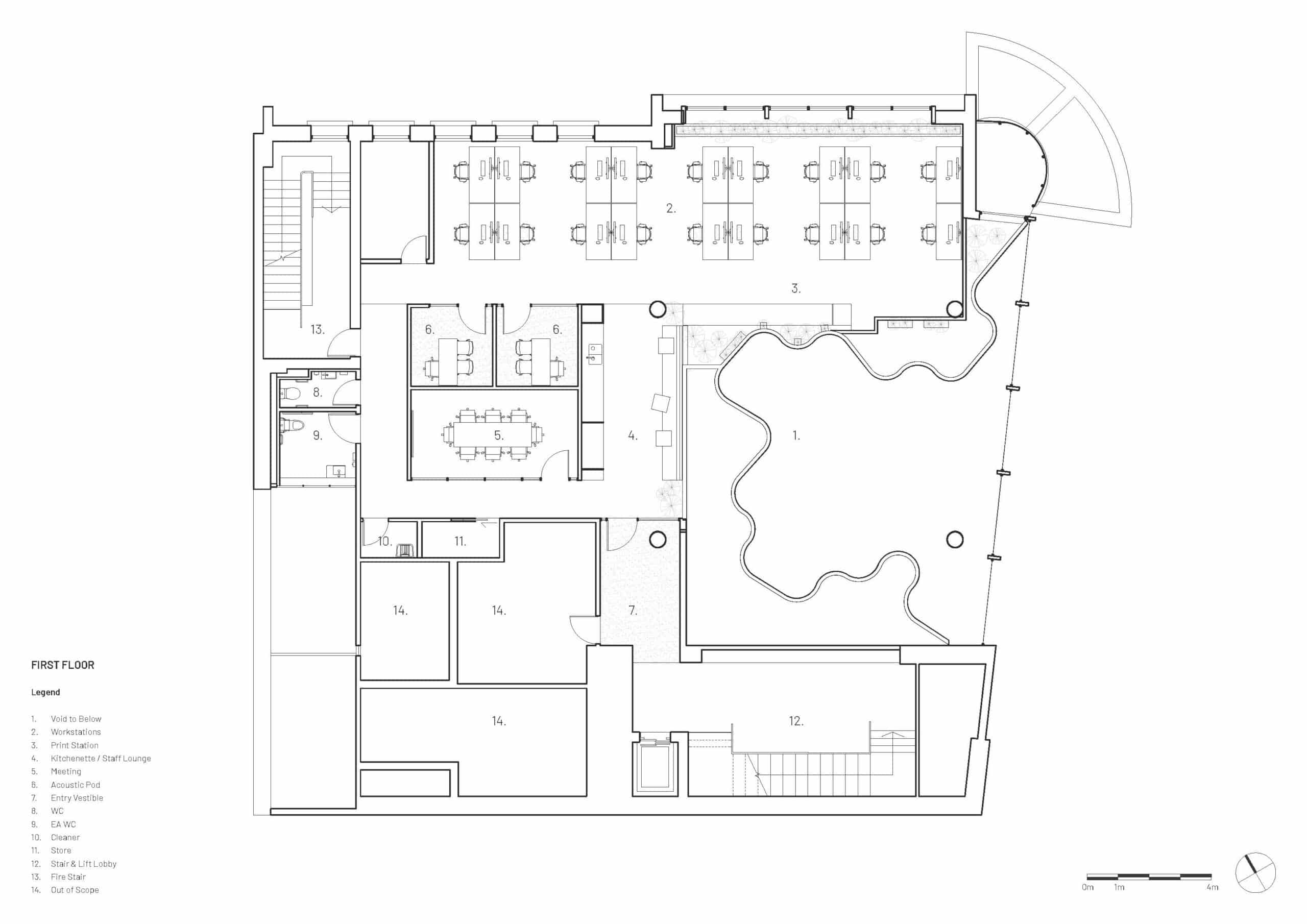
The upper level 178m2 is a staff space with amenities, meeting rooms and open plan office. Cutouts in the timber hollow and the continuation of internal landscaping connects this otherwise ‘back of house’ area with the activity on the ground floor.
Natural tree hollows provide shelter which sustains all forms of life. TERROIR drew on this concept to imagine a tree hollow-like space where people come together and share information or partake in activities, and which is visible through the original mid-century curtain wall glazing from the street. This gathering space brings the city inside. The Blackheart Sassafras veneer lining was sustainably sourced from Tasmania’s northwest and TERROIR worked closely with Vos Construction and Joinery, who invested more than 1,500 hours to achieve the 3.6m high by 56m long sinuous form within a tight commercial budget for the entire fit out. The support structure for the timber veneer installation was based on guitar manufacturing and clinker-built timber dinghy techniques and is visible from the staff working spaces and kitchenette on the upper floor. In addition, there was an imperative to achieve access compliance to provide a welcoming space for all. These works included demolition of existing front steps to make space for new compliant street entry and installing four new toilet facilities.
> BUILDINGS > STRATEGY > URBAN > RESEARCH