Maitland City Bowling Club

An existing bowling Club requested a significant transformation to address energy and occupation issues while providing an iconic new form that signaled a new identity for the club. The Club understood that a long term vision was required to ensure their maintained relevance and market position and avoid the fate of many similar Clubs, as portrayed in the Australian cinema classic "Crackerjack". With this in mind, the Club approached Big Switch Projects and defined a brief to reposition the Club at a cultural level and also with an increased emphasis on ESD measures. TERROIR then won an architectural competition with a submission driven by a market-led approach used in our tourism projects. The rebranding of the Club and the desire to open it to new markets led to a strong masterplan that could be implemented over a 5-10 year period.

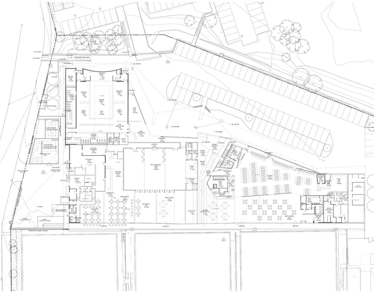
The design solution evolved from a need to address these issues in an economical yet substantive manner, and one that enabled a "complete" stage one of works while enabling further improvements over time after the initial alternations.

Three key elements emerged as essential to the initial phase of work as they could achieve this transformation in a clear and direct manner: a new roof, new servicing, and a new facade to the bowling greens.

The high visibility of the site, the opportunity to respond to the greater landscape context, the need to manage changing servicing requirements, and the need to open up the building to more light and space, led to the conclusion that a major new roof element was necessary. The prominence of the roof is such that it will form a major part of rebranding the club for the future. Functionally, this roof acts a new "backpack" of sorts, enabling and containing new and more efficient building services, while also acting as a giant rain harvester, and as a solar parasol protecting the building from the harsh Maitland sun.

The need to address the history and culture of the club, to transform the quality of the interior spaces and to address ESD issues, suggested that a new facade would be a critical accompaniment to the new roof. The new 105m long glass facade reorients the Club onto the bowling greens while the glass specification further improves the shading and internal energy loading of the building.

This project has shown the power of a strong design solution - and one based in a rigorous understanding of the market profile for the commercial success of the project - can unite key stakeholders, galvanise a group around a long-term vision and reposition a Club that will have a successful future while others have been forced into closure.

Completed photography by Brett Boardman